貸室ご案内

活動空間の心地よさが仕事の生産性向上につながる

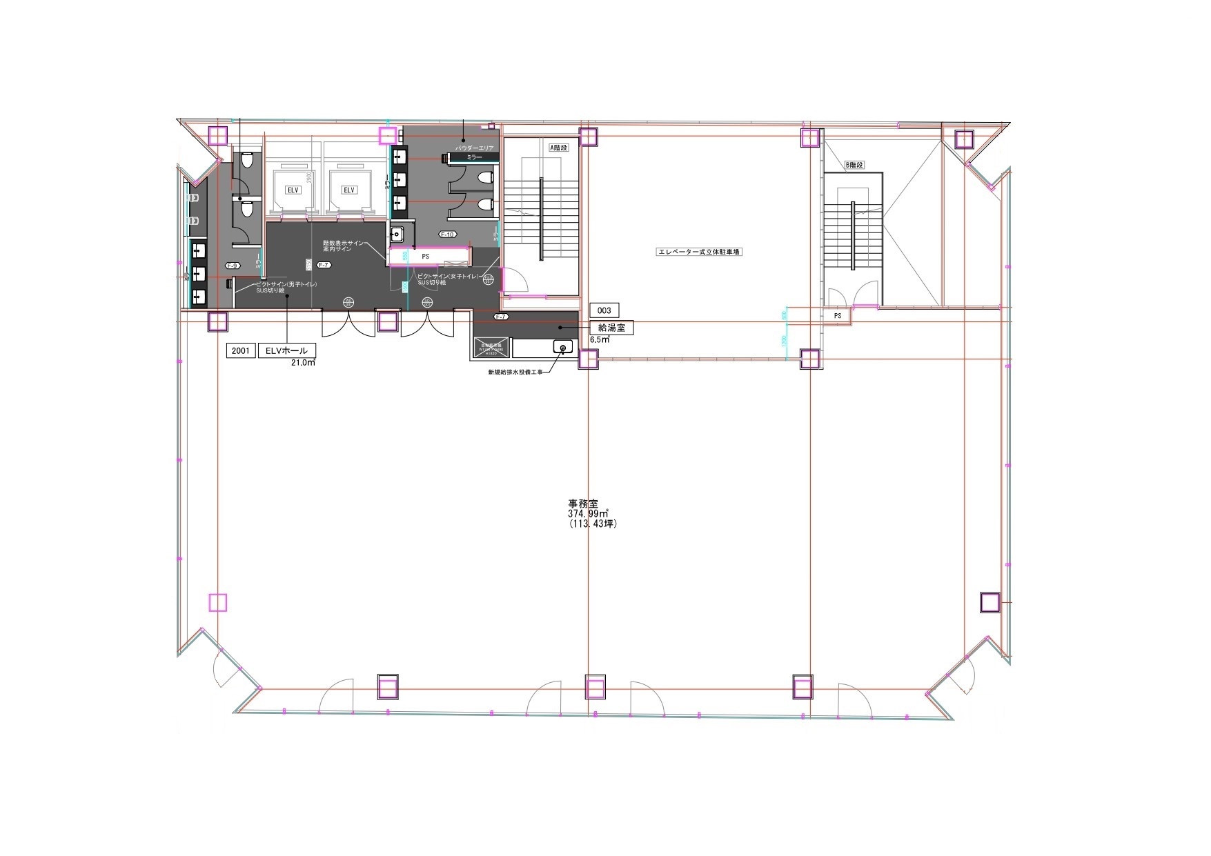
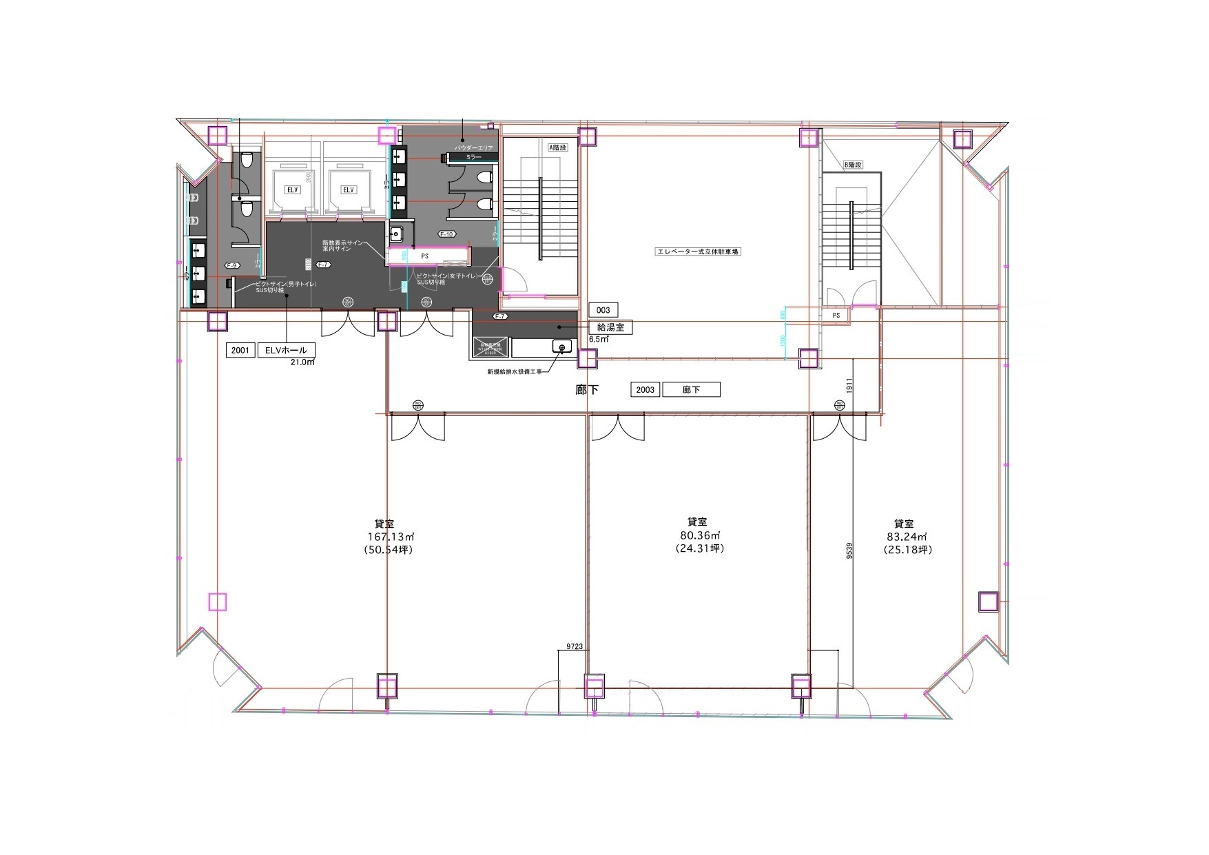
フロアマップ

※スマートフォンの方はこちらよりご覧下さい。

「バイオフィリックデザイン」

nonoha 千種は2015年8月のフルリノベーションを機に、「バイオフィリックデザイン」の考え方をリノベーションのコンセプトに導入致しました。
オフィスデザインに緑化等の自然を取り入れる事により、館内で執務される方々の生産性、幸福度、創造性の向上を目指しております。

空室の確認は下記までお願いします。

管理会社

空室のお問い合わせ
積村ビル管理株式会社 BM事業部
〒450-0002
名古屋市中村区名駅2-41-5 CK20名駅前ビル3階
℡:052-582-3376
URL: https://www.sekimura.co.jp/